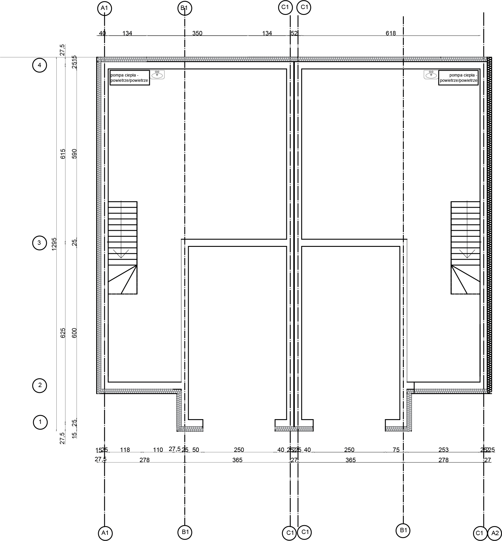
Rzuty

Kliknij na konkretny rzut aby powiększyć. Poniżej każdego rzutu znajdziesz link do pobrania wersji w maksymalnej rozdzielczości.

Parter

Pobierz

Piętro

Pobierz

Piwnica

Pobierz